Aufstockung Anbau Produktionsgebäude
Anbau an ein Produktionsgebäude für Produktions-, EMR- und Büroraum. Neue Lüftungsanlage auf dem begehbaren Flachdach. Bestandsdachkonstruktion zum Anbau erneuern ohne Last in den Bestand abzutragen.
...

Aufstockung Anbau Produktionsgebäude
Anbau an ein Produktionsgebäude für Produktions-, EMR- und Büroraum. Neue Lüftungsanlage auf dem begehbaren Flachdach. Bestandsdachkonstruktion zum Anbau erneuern ohne Last in den Bestand abzutragen.
...

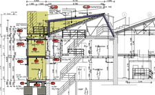
Neuer Anbau mit Dacherweiterung
Zur Verbesserung der Reinraumsituation für eine Personen- und Materialschleuse ist ein Anbau erforderlich. Gleichzeitig ist das Dachgeschoss zu erweitern für die neue Lüftungsanlage. Die Windaussteifung des alten Dachstuhls musste in ein neues System überführt werden.
...

Maschinenfundamente für Industriemaschinen
Überdimensionale Maschinenfundamente mit mehreren versetzten Ebenen in 2 Richtungen. Aufwendige Aussparungsanordnung für Lastaufnahmefixatoren.
...